Dostawa do:Poland, Lubelskiezmień
| Przesyłka kurierska: | 1 dzień roboczy,0,00 zł | 
| Odbiór osobisty: | 1 dzień roboczy,0,00 zł | 
| Grubość szkła: | 6 mm | 
| Kierunek otwierania drzwi: | Na zewnątrz | 
| Kolor profili i okuć: | Chrom | 
| Kolor szkła: | Brązowe, Grafitowe, Mirror, Przejrzyste, Satynowe, UltraClear | 
| Mechanizm unoszenia drzwi: | Tak | 
| Montaż bezprofilowy: | Nie | 
| Montaż bezprogowy: | Tak | 
| Możliwość wypięcia drzwi: | Nie | 
| Niwelacja krzywizny ściany: | Tak | 
| Pole stałe drzwi: | Podwójne | 
| Powłoka ochronna szkła: | Tak | 
| Sposób otwierania drzwi: | Uchylne | 
| Strona drzwi: | Lewa, Prawa | 
| Szerokość gabarytowa: | 1100 mm, 1200 mm, 1300 mm, 1400 mm | 
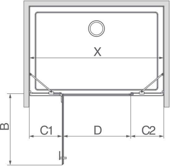
| Szerokość skrzydła (B): | 540 mm, 640 mm, 740 mm, 840 mm | 
| Szerokość wejścia (D): | 505 mm, 605 mm, 705 mm, 805 mm | 
| Szerokość wnęki : | 1085-1115 mm, 1185-1215 mm, 1285-1315 mm, 1385-1415 mm | 
| Szerokość ścianki drzwi (C1): | 287-302 mm | 
| Szerokość ścianki drzwi (C2): | 287-302 mm | 
| Typ drzwi: | Pojedyncze | 
| Typ montażu: | Na brodziku, Na płytkach | 
| Typ powłoki ochronnej: | EasyClean | 
| Typ uchwytu: | Punktowy | 
| Wymiar zewnętrzny (X): | 1085-1115 mm, 1185-1215 mm, 1285-1315 mm, 1385-1415 mm | 
| Wysokość drzwi (H): | 2000 mm | 
| Zakres niwelacji krzywizny ściany : | 15 mm | 
| Zawiasy zlicowane: | Tak | 
Drzwi prysznicowe z kolekcji Fuenta są drzwiami otwieranymi o bardzo wysokiej jakości konstrukcji. Charakteryzują się eleganckimi chromowanymi okuciami o owalnym kształcie, nowoczesnymi zawiasami oraz świetnym stosunkiem jakość / cena.
Najważniejsze cechy kolekcji:

Kabina wyposażona została w szkło hartowane o grubości 6mm, które charakteryzuje się zwiększoną wytrzymałością mechaniczną oraz większą odpornością na różnice temperatur od zwykłego szkła. Ponadto szkło hartowane jest bezpieczne w użytkowaniu – przy rozbiciu rozpada się na drobne kawałeczki o nieostrych krawędziach. Dzięki temu, Ty i Twoja rodzina możecie czuć się bezpiecznie korzystając z kabiny Radaway.
Kupując kabinę prysznicową warto pamiętać, że istnieją różne sposoby montażu, pozwalające osiągnąć odmienne efekty estetyczne. Oferowaną kabinę możesz zamontować na dwa sposoby - tradycyjny na brodziku, ale również nowoczesny bezpośrednio na podłodze.

Przeprowadzone testy obejmują:
1. Badanie odporności na uderzenie / właściwości odłamków. 2. Badanie siatki spękań. 3. Badanie odporności na korozję. 4. Badanie odporności na chemikalia i plamienie. 5. Badanie odporności na cykle zamaczania i suszenia. 6. Badanie szczelności. 7. Badanie stabilności z użyciem elementu opadającego wewnątrz kabiny (równoważną uderzeniu ludzkiego ciała na dużą powierzchnię, tj. uderzenie barkiem, upadek). 8. Badanie odporności na wielokrotne otwieranie i zamykanie (20000 cykli).